Opération BT 340

  • 2017 ECO CONST BT 340 LOGT SEMAC

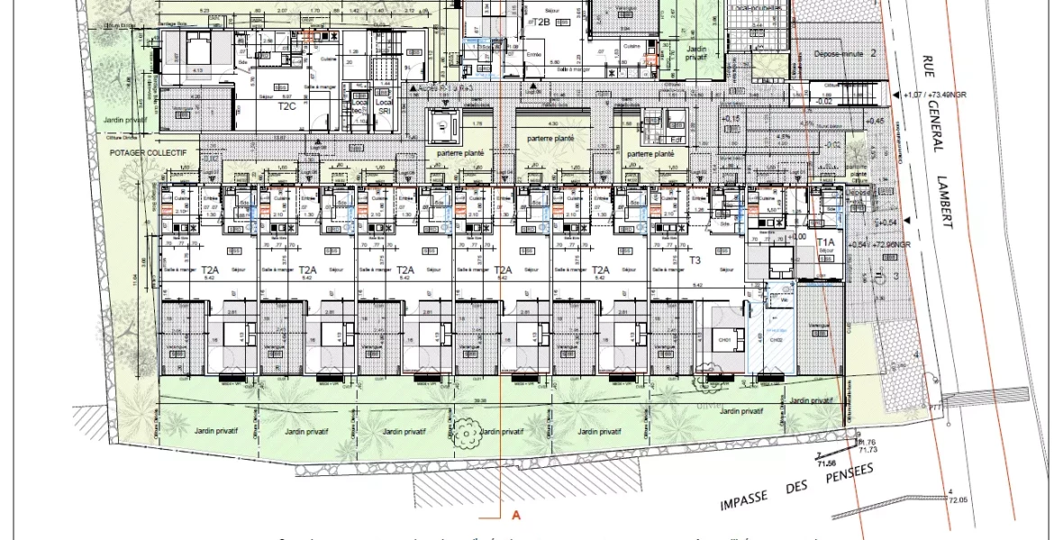
OPÉRATION BT 340 :  Construction de 28 en RPA à Saint-Joseph : mission Économie de la Construction

Année de réalisation : 2017
Maître d’ouvrage : SEMAC
Montant des travaux : 3 500 000 €
Architecte : LOUDARPER

Opération BT 340